






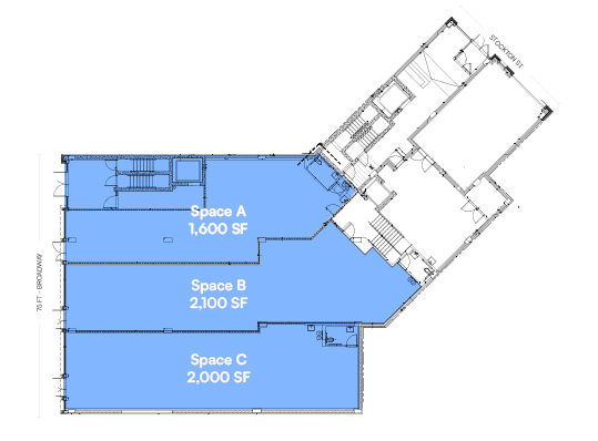
4 Available Spaces
Space A
Space B
Space C
Total
Space A
Space Size
1,600 SF
Lease Rate
Call for Price
Lease Term
Modified Gross
Highlights
Brand new development
Vanilla box
25 FT Ceilings
2 Means of Egress
Roll In Gate
Loading and Unloading Area in the Rear of Stockton ST
Space A: 1,600 SF
Space B: 2,100 SF
Space C: 2,000 SF
Options to combine spaces
Space A + Space B: 3,700 SF
Space B + Space C: 4,100 SF
Space A + Space B + Space C: 5,700 SF
Map
Location Map
Retail Map
Location
Located in the Bed-Stuy neighborhood of Brooklyn between Stockton St & Lewis Ave near the Myrtle Ave subway station.
Nearest Transit: J & M trains at Myrtle Ave and the B47, B46, B15, & B54 bus lines.
Nearby tenants include Cafe Erzulie, Brooklyn Art Cave, Brooklyn Mayd Powersports, State Farm, Horseradish Market, Daily Dose Pharmacy, Gopuff, Milly's Pizzeria, Broadway Dental Center, Auntie Anne's, Bond Collective, Native Restaurant and Lounge, Dunkin', Little Mo, FOOD BAZAAR, Flying Apple, Mayas Snack Bar, Zuly Beauty Studio, Pizza Hut, Popeyes Louisiana Kitchen, Checkers, Krazy Pizza and Wings, and more!
Interested in this property?
Get in touch with our team.