




















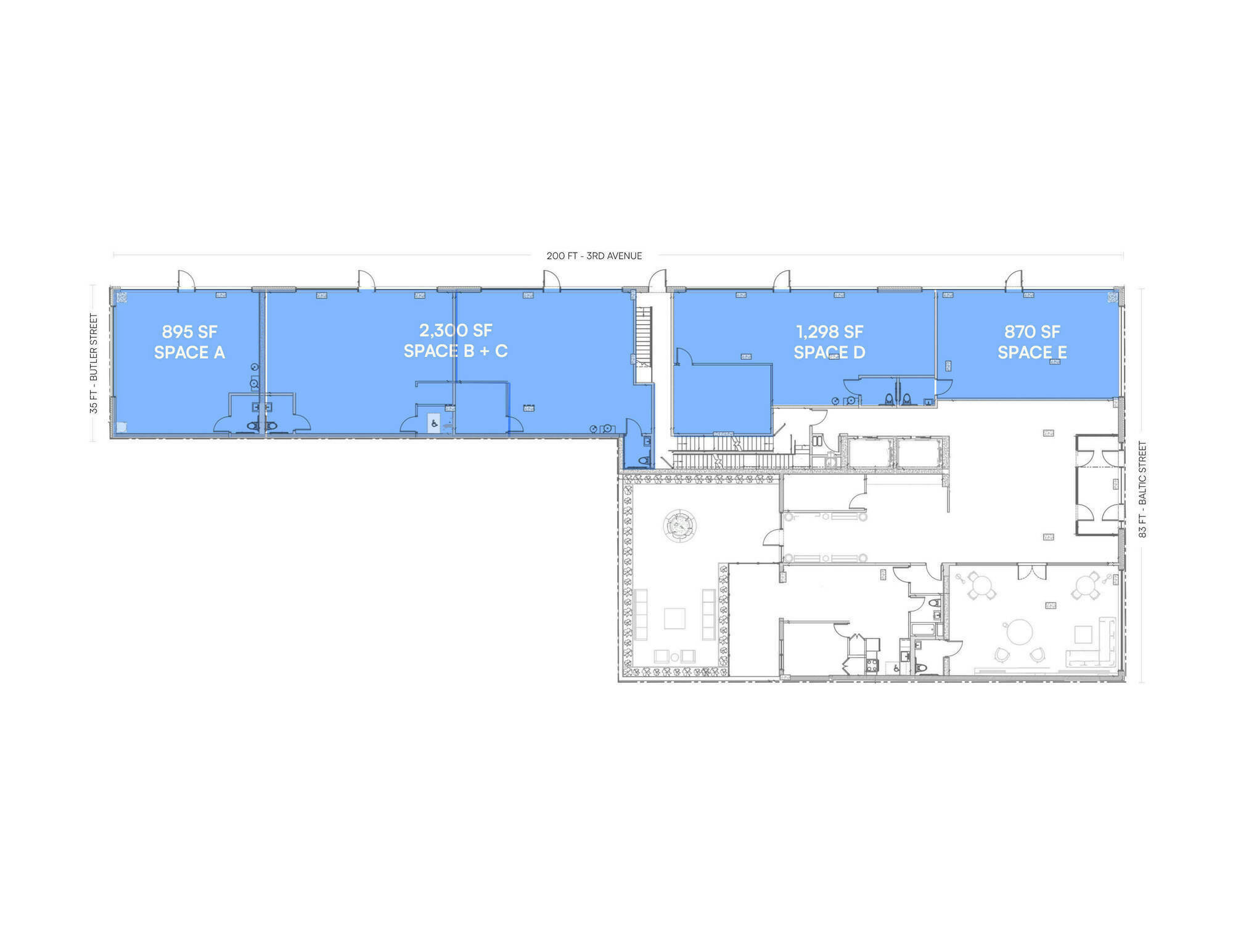
6 Available Spaces
Space A
Space B
Space C
Space D
Space E
Space B + Space C
Space A
Space Size
895 SF
Lease Rate
Call for Price
Lease Term
Modified Gross
Space Type
Retail
Highlights
Great Retail Opportunity
Base of A 96-Unit Brand New Apartment Building
Some Spaces Have to Meet Certain Use Requirements Approved by the Gowanus Council
Ceiling Height: 15 FT - 20 FT
Space A: 895 SF
Space B: 1,132 SF
Space C: 1,151 SF
Space D: 1,298 SF
Space E: 870 SF
Space B + Space C: 2,300 SF
Map
Location Map
Retail Map
Location
Located in the Gowanus neighborhood of Brooklyn between Baltic St & Butler St near the Union St subway station.
Nearest Transit: D, N, & R trains at Union St and the B103, B37, & B65 bus lines.
Nearby tenants include CubeSmart, Brooklyn Car and Van Rentals, Gowanus Fitness, Threes Brewing, Petri Plumbing, Heating Cooling & Drain Cleaning, Luna's Tire Shop 2, ZeroSpace, Wafels & Dinges Warehouse, Gemini and Scorpio Loft, UpFit Training Academy Brooklyn, Herboganic, Mirrors Collective, and more!
Interested in this property?
Get in touch with our team.