Close

1,500 – 7,000 SF | 501 Bushwick Avenue | Retail Portfolio Offering: Three Independent Spaces, One Prime Location

501 Bushwick Avenue | Brooklyn, NY, 11206

Price: Call 718.437.6100

  • Overview
  • Spaces
  • Documents
  • Photos
  • Maps
  • Demographics

Overview

Property Details

Property Type Retail
Property Name 1,500 – 7,000 SF | 501 Bushwick Avenue | Retail Portfolio Offering: Three Independent Spaces, One Prime Location
Primary Broker Shlomi Bagdadi
Zoning R7A

Property Description

Retail Portfolio Offering: Three Independent Spaces, One Prime Location

Location Description

Located in Bushwick neighborhood on Brooklyn on the corner of Montieth St & Bushwick Ave near the Flushing Ave and Myrtle Ave subway station.

Nearest Transit: J, M, & Z train at Flushing Ave and Myrtle Ave and the B57, B46, B47, B15, B54, & B60 bus lines.

Nearby tenants include IHOP, FOOD BAZAAR, Burger King, McDonald's, Cinnabon, Popeyes Louisiana Kitchen, Wingstop, Blink Fitness, Dunkin', Winona's, Bike Plant, Guacuco, Starbucks, Bravo Supermarkets, Flying Apple NY, Rebecca's, Mao Mao, Santa Panza, The Concrete Jungle, Dunkin', Checkers, Norbert's Pizza, and more!

Highlights

  • Beautiful Glass Frontage
  • Unique Branding Opportunity
  • At the Base of 392 Residential Units
  • Parking Lot
  • ADA Accessible
  • Basement Ceiling Height: 20 FT
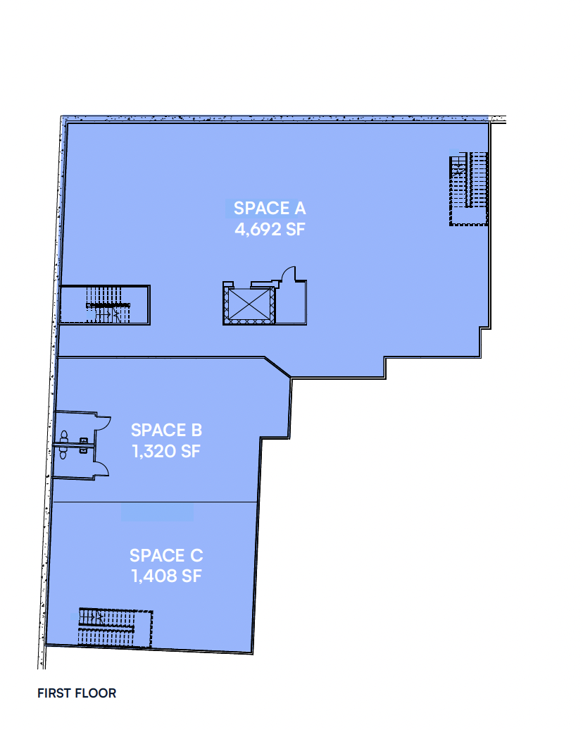
  • Space A: 7,000 SF
  • 4,000 SF Ground Floor + 3,000 SF Lower Level
  • Built Out as a Supermarket
  • Target users: Restaurant Bars, Delis, Organic Markets, Daycare, Entertainment Club, Children's Playground, or Users Requiring Unique 20 FT High Ceilings
  • Space B: 5,500 SF
  • 1,000 SF Ground Floor Retail + 4,500 SF Lower Level
  • Private Lobby
  • Elevator
  • Stairwell to Lower Level
  • Space C: 1,500 SF
  • Ground Floor Retail
  • Perfect for Beauty Salon, Hardware store, Shipping center, Barber shop, Tattoo Shop, Physical Therapy

Map

Fred Betesh

Senior Associate

Share to Social

Request a More Info

    Spaces

    Space Name Space Size Lease Rate Lease Term Space Type
    SPACE A 7,000 Sf Call For Price - -
    Space B 5,500 Sf Call For Price - -
    Space C 1,500 Sf Call For Price - -
    SPACE 4 6,900 Sf Call For Price - -

    Documents

    Photos

    Maps

    Demographics

    0.25 Miles 0.5 Miles 1 Mile
    Total households 3,280 9,365 36,056
    Total households 3,280 9,365 36,056
    Total households 3,280 9,365 36,056
    Total households 3,280 9,365 36,056
    Total households 3,280 9,365 36,056
    Total households 3,280 9,365 36,056
    Total households 3,280 9,365 36,056
    * Demographic Data Derived From 2020 ACS - US Census
    Back to top