Close

6,400 SF | Building Condo in Prime Williamsburg with 3 Commercial Spaces for Sale

170 South 1st Street | Brooklyn, NY, 11211

$4,750,000

Sale Price

  • Overview
  • Documents
  • Photos
  • Maps
  • Demographics

Overview

Property Details

Property Type Special Purpose
Property Name 6,400 SF | Building Condo in Prime Williamsburg with 3 Commercial Spaces for Sale
Zoning R6

Property Description

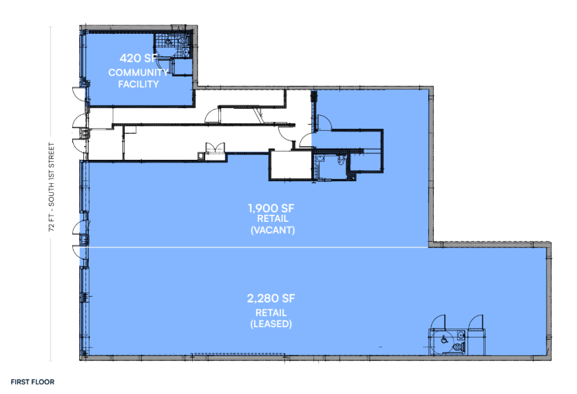
Presenting 170 South 1st Street, a 16,183 SF building in Brooklyn, NY. Zoned R6, this property houses 3 commercial spaces, with 6,400 SF available for sale. The base of a bustling apartment building, it features an ICAP 2033, a sprinkler system, and 2 retail spaces (6,000 SF), along with a 420 SF community facility space. Currently, 2,200 SF is occupied, leaving 3,700 SF of retail space and 420 SF for community facility use available. An enticing opportunity for savvy investors.

Location Description

Located in the Williamsburg neighborhood of Brooklyn between Bedford Ave & Driggs Ave near the Bedford Ave L train.

Nearest Transit: L train at Bedford Ave, J & M train at Marcy Ave, and the B62 bus lines.

Nearby tenants include Tabare, Fini Pizza, Vanessa's Dumplings, Maison Premiere, Supreme, Mission Sandwich Social, Namkeen, Lucky Dog, Oslo Coffee Roasters, Super Burrito, Layla, Tacombi, The Butcher's Daughter, GHOST, and more!

Highlights

  • At the Base of Busy a Apartment Building
  • Sprinkler System
  • ICAP 2033
  • 3 Commercial Spaces
  • 2 Retail Spaces: 6,000 SF
  • 1 Community Facility Space: 420 SF
  • 1 Retail Space Occupied - 2,200 SF
  • 2 Spaces Vacant - 3,700 SF Retail Space & 420 SF Community Facility

Map

Share to Social

Request a More Info

    Documents

    Photos

    Maps

    Demographics

    0.25 Miles 0.5 Miles 1 Mile
    Total households 3,280 9,365 36,056
    Total households 3,280 9,365 36,056
    Total households 3,280 9,365 36,056
    Total households 3,280 9,365 36,056
    Total households 3,280 9,365 36,056
    Total households 3,280 9,365 36,056
    Total households 3,280 9,365 36,056
    * Demographic Data Derived From 2020 ACS - US Census
    Back to top