Close

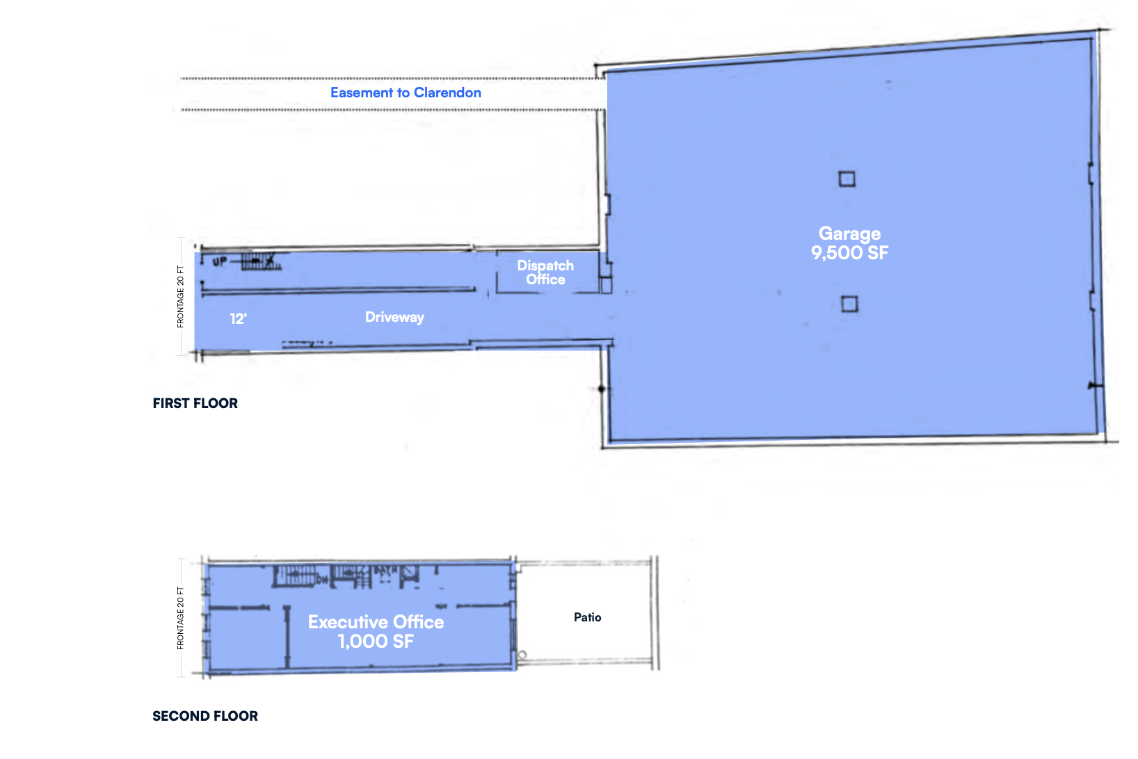
10,500 SF | 2179 Clarendon Road | Public Parking & Storage Space – Includes 1,000 SF Executive Office + 100 SF Dispatch Office

2179 Clarendon Road | Brooklyn, NY, 11226

Price: Call 718.437.6100

  • Overview
  • Spaces
  • Documents
  • Photos
  • Maps
  • Demographics

Overview

Property Details

Property Type Industrial
Property Name 10,500 SF | 2179 Clarendon Road | Public Parking & Storage Space – Includes 1,000 SF Executive Office + 100 SF Dispatch Office
Primary Broker Shlomi Bagdadi
Zoning R5B, R6A

Property Description

Public Parking & Storage Space - Includes 1,000 SF Executive Office + 100 SF Dispatch Office

Location Description

Located in the East Flatbush neighborhood of Brooklyn between Flatbush Ave & E 22nd St near the Cortelyou Rd subway station.

Nearest Transit: Q train at Cortelyou Rd and the 5 & 2 train at Beverly Rd. The B41, B49, BM4, BM3, B103, BM1, & BM2 bus lines.

Nearby tenants include Tex’s Chicken & Burgers, Golden Blue Bar & Restaurant, St Marc Bakery, Angelo's Pizza, China Dragon, El Rancho Dominicano, Wing Hing, District8, Angelo's Pizza, Hayati Baklava, China Tang Kitchen, 11 Parishes Restaurant, The Sandwich Spot, Flatbush Pharmacy, Luxury Glam Spa, Cricket Wireless Authorized Retailer, Fancy Buffet, and more!

Highlights

  • C/O for Public Parking & Storage
  • Garage Ceiling Height: 13.5 FT
  • Prime East Flatbush
  • Public Parking & Storage Space: 9,500 SF
  • Executive Office Space: 1,000 SF
  • Dispatch Office Space: 100 SF
  • Target tenants: Storage, Parking, Contractors, HVAC contractors, Lumber yards, Plumbers companies, Electricians companies
  • Also Available for Sale

Map

Share to Social

Request a More Info

    Spaces

    Space Name Space Size Lease Rate Lease Term Space Type
    Parking & Storage Space 10,500 Sf Call For Price - Industrial

    Documents

    Photos

    Maps

    Demographics

    0.25 Miles 0.5 Miles 1 Mile
    Total households 3,280 9,365 36,056
    Total households 3,280 9,365 36,056
    Total households 3,280 9,365 36,056
    Total households 3,280 9,365 36,056
    Total households 3,280 9,365 36,056
    Total households 3,280 9,365 36,056
    Total households 3,280 9,365 36,056
    * Demographic Data Derived From 2020 ACS - US Census
    Back to top